Choose Your Preferences

Houlihan Lawrence Real Estate Logo Active Commercial Sale Office

Maple Street, Cementon, New York, 12414, USA

USD $450,000
Reference ID: 814405 Web ID: glne1
  • Three standalone structures

  • Located on Route 9W / Maple Avenue

  • Main building zoned residential and commercial

  • Oversized garage with attached office

  • 2 miles from Rip Van Winkle Bridge

Discover what all the buzz is about in Catskill! This prime property, featuring three standalone structures, is ideally positioned along the bustling, high-traffic Route 9W / Maple Avenue corridor. Whether you are looking for a live-work opportunity or a strategic investment, this versatile property offers endless possibilities in a highly visible location. The main building, zoned for both residential and commercial use, provides the perfect setup to either call home while running a business or establish a thriving enterprise with excellent visibility and convenience. Inside, spacious sunlit rooms with high ceilings create an inviting atmosphere, while the upstairs offers a potential bedroom or office space, with the remainder serving as a blank canvas for your vision. Adjacent to the main building, the outbuilding presents an opportunity for additional office space or an income-producing rental unit. Meanwhile, the oversized garage with an attached office is perfect for accommodating commercial vehicles, a workshop, or a hobbyists dream space. Strategically located just 2 miles from the Rip Van Winkle Bridge, 3 miles from the NYS Thruway, and only 2 hours from NYC, this property offers unparalleled accessibility. Now is the time to bring your business or franchise to Catskill! Whether youre launching a new venture, expanding an existing business, or making a smart investment, this location is primed for success. If you can dream it, you can build it here.
  • Transaction Type: Commercial Sale
  • Property Type: Office
  • Status: Active
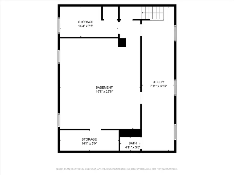
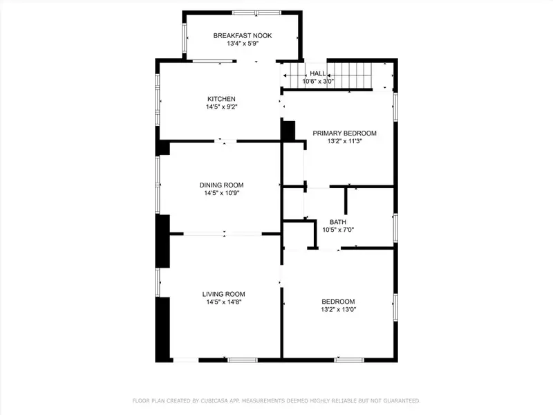
  • Area: 3,492 sf
  • Year Built: 1940
  • Lot Size: 0.46 Acres
  • Cooling: None
Map
Businesses Nearby

Rip Van Winkle Brewing Company

(5 miles away)

Goodies

(6 miles away)

Creekside

(6 miles away)

Subversive Malting & Brewing

(6 miles away)

Angel’s Latin Restaurant

(6 miles away)

Phōs My Greek American Kitchen

(6 miles away)

Citiot

(7 miles away)

Arianny's Casa Grande Mexican Bar & Grill

(7 miles away)

J&J Smokehouse BBQ

(7 miles away)

Barnwood Restaurant

(8 miles away)
Public Transportation

Adirondack Trailways Bus Stop

(5 miles away)

Greyhound: Bus Stop

(8 miles away)

Catskill (Park & Ride)

(8 miles away)

Hudson

(10 miles away)

Woodstock @ Rt 212 & Rock City Rd

(12 miles away)

Trailways Bus Station

(15 miles away)

Rhinecliff

(15 miles away)

Poughkeepsie Train Station

(30 miles away)

Hawk/Capitol Station - Washington Ave & Hawk St

(37 miles away)

Excellent Bus Service - Main Terminal

(50 miles away)
Airports

Green Acres Airport-1A1

(9 miles away)

Kingston Ulster Airport

(11 miles away)

Klaverack Airport-04NY

(14 miles away)

Columbia County Airport (1B1)

(15 miles away)

Freehold Airport 1I5

(18 miles away)

Greenville-Rainbow Airport-1H4

(20 miles away)

Albany International Airport

(43 miles away)

New York Stewart International Airport

(45 miles away)

Sullivan County International Airport

(54 miles away)

Watertown International Airport

(167 miles away)
Contact Houlihan Lawrence Real Estate
By submitting this form, you agree to our privacy policy and terms of service.

DISCLAIMER: Listing data provided to the Site by third parties. Reliance Relocation Services, Inc. and subsidiary companies do not warrant or make representations regarding the listings and other information displayed on the page, including the reliability, accuracy, or currency of any information, content, or service displayed on this page. Listings may be withdrawn from the market at any time and are subject to errors, omissions, and prior sale or rental without notice.

Property Highlights

  • Three standalone structures

  • Located on Route 9W / Maple Avenue

  • Main building zoned residential and commercial

  • Oversized garage with attached office

  • 2 miles from Rip Van Winkle Bridge