Choose Your Preferences

Bender Realty Logo Active Commercial Sale Hospitality

3625 Keith Street Northwest, Cleveland, Tennessee, 37312, USA

USD $1,790,000
Listed by Bender Realty
Reference ID: 20254156 Web ID: 6wy3k
  • Remodeled interior and exterior finishes

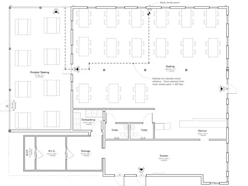
  • Spacious dining area

  • Covered patio for exterior seating

  • Walk-in fridge and cooler included

  • Flexible kitchen layout with hood system

COMPLETELY REMODELED RESTAURANT...Located in a high-traffic area with excellent visibility and easy access, this restaurant is set up for success. Completely remodeled interior and exterior with stylish, modern finishes. Spacious dining area, covered patio for exterior seating, and a flexible kitchen layout. Walk-in fridge, cooler and hood system already in place. Carefully crafted for comfort and style, this space offers everything you need to hit the ground running. Estimated Completion Date for updates is end of October/First of November.
  • Transaction Type: Commercial Sale
  • Property Type: Hospitality
  • Status: Active
  • Area: 2,650 sf
  • Year Built: 1992
  • Lot Size: 1.58 Acres
  • Cooling: Central Air
Map
Businesses Nearby

Golden Yolk

(0.3 miles away)

Aubrey's Cleveland TN

(0.4 miles away)

Logan's Roadhouse

(0.4 miles away)

Cleveland Gondolier

(0.5 miles away)

Eggs Up Grill

(1 mile away)

Old Fort

(1 mile away)

CHORTI COCINA LATINA

(1 mile away)

Un Cafecito

(2 miles away)

Inman Social

(3 miles away)

Farmhouse Cleveland

(3 miles away)
Public Transportation

Sethra bus (CUATS)

(0.8 miles away)

Turimex Internacional

(2 miles away)

Cleveland Urban Area Transit System Depot (buses 6am-6:30pm M-F except holidays)

(3 miles away)

Cleveland Transit System

(6 miles away)
Airports

Cleveland Regional Jetport

(4 miles away)
Contact Bender Realty
By submitting this form, you agree to our privacy policy and terms of service.

DISCLAIMER: Listing data provided to the Site by third parties. Reliance Relocation Services, Inc. and subsidiary companies do not warrant or make representations regarding the listings and other information displayed on the page, including the reliability, accuracy, or currency of any information, content, or service displayed on this page. Listings may be withdrawn from the market at any time and are subject to errors, omissions, and prior sale or rental without notice.

Property Highlights

  • Remodeled interior and exterior finishes

  • Spacious dining area

  • Covered patio for exterior seating

  • Walk-in fridge and cooler included

  • Flexible kitchen layout with hood system