Choose Your Preferences

Chinowth and Cohen Realtors Logo Active Commercial Industrial

211 West Canyon Run, Hinton, Oklahoma, 73047, USA

USD $1,900,000
Reference ID: 1166406 Web ID: c4eee
  • 322 acres site size

  • 26980 square feet facility area

  • 19680 square feet manufacturing space

  • 800 amp three-phase 480V power

  • Four assembly bays with two cranes

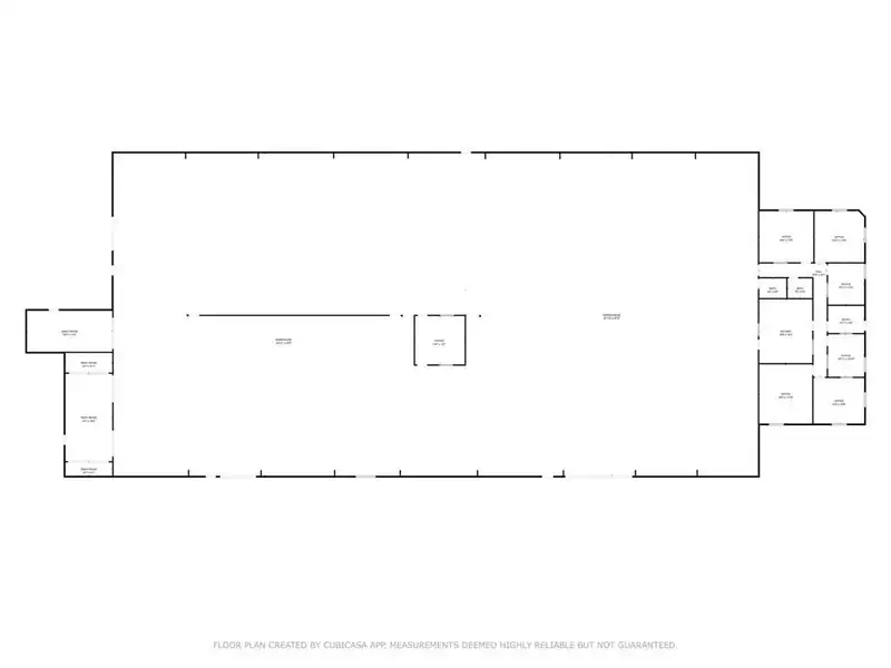
Exceptional opportunity to own a turnkey fabrication shop data center or industrial facility with prime access just 15 miles south of I-40 and 45 minutes west of Oklahoma City Strategically located between El Reno and Weatherford each only 20 miles away this property offers convenience infrastructure and versatility for manufacturing oilfield services distribution or regional operations Situated on 322 acres and built in 2014 the facility features 26980 square feet of space including 21980 square feet of climate-controlled area fully insulated with spray foam and vented throughout The 19680 square foot manufacturing space is supported by robust electrical infrastructure including 800 amp three-phase 480V power There are four assembly bays three grade-level drive-in doors and two two-ton bridge cranes A 2300 square foot office area includes a reception area recessed lighting and storage space making it ideal for administrative functions#xD;#xA;The building is well-lit with LED lighting throughout and supported by access lighting and a comprehensive security system It also includes a blasting booth and a separate paint booth each with dedicated filtration systems and the latter with a trolley system for efficiency Outside the property offers a premium asphalt parking lot totaling a half-acre plus a large fenced yard providing both privacy and additional secured parking or storage The lit monument signage ensures visibility for passing traffic This well-equipped and meticulously maintained industrial property offers a rare blend of location functionality and readiness for a wide range of commercial uses
  • Transaction Type: Commercial
  • Property Type: Industrial
  • Status: Active
  • Area: 26,980 sf
  • Year Built: 2014
  • Garage: 0
Map
Businesses Nearby

Ollie's Liquor Barn

(0.1 miles away)

Sugar Creek Casino

(2 miles away)

Casino Oklahoma

(2 miles away)

The Red Dirt Roadhouse

(2 miles away)

Finca Cocina

(2 miles away)

Chikiwapis

(2 miles away)

Pecina's Mexican Cafe - Hinton

(2 miles away)

Cart's Farm & Home Supply Inc

(2 miles away)
Public Transportation

211 W Canyon Run

(0.5 miles away)
Airports

Hinton Municipal Airport-2o8

(0.7 miles away)

El Reno Regional Airport

(20 miles away)

Clarence E. Page-Cimarron-Yukon Municipal Airport

(30 miles away)

Clinton Regional Airport

(33 miles away)

Kingfisher Airport

(34 miles away)

Wiley Post Airport-PWA

(40 miles away)

Will Rogers International Airport

(43 miles away)

Lawton-Fort Sill Regional Airport

(64 miles away)

Shawnee Regional Airport KSNL

(80 miles away)
Contact Chinowth and Cohen Realtors
By submitting this form, you agree to our privacy policy and terms of service.

DISCLAIMER: Listing data provided to the Site by third parties. Reliance Relocation Services, Inc. and subsidiary companies do not warrant or make representations regarding the listings and other information displayed on the page, including the reliability, accuracy, or currency of any information, content, or service displayed on this page. Listings may be withdrawn from the market at any time and are subject to errors, omissions, and prior sale or rental without notice.

Property Highlights

  • 322 acres site size

  • 26980 square feet facility area

  • 19680 square feet manufacturing space

  • 800 amp three-phase 480V power

  • Four assembly bays with two cranes