Choose Your Preferences

Greenridge Realty, Inc. Logo Active Commercial Sale Mixed-use

306 Russell Street, Hubbardston, Michigan, 48845, USA

USD $424,900
Reference ID: 25027287 Web ID: 73a88
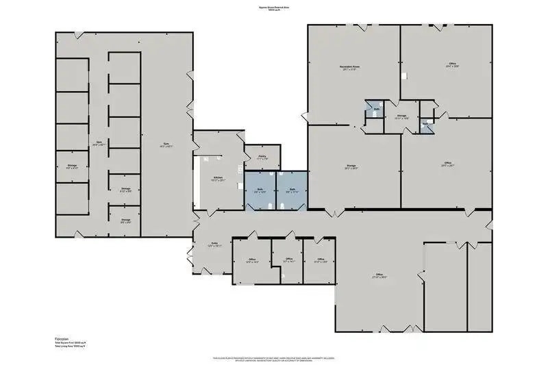
  • 15000+ sq ft building size

  • 5 two-bedroom residential apartments

  • Multiple office spaces and bathrooms

  • 42x65 gym converting to storage units

  • 1.5 acre site with parking and greenspace

One of a kind extremely solid investment opportunity. Huge 15,000+ sq ft building started its life out as a school but now offers 5 x 2 Bed residential apartments, multiple office spaces, multiple bathrooms, full kitchen, 42x65 gym, and tons of bonus space. Entire building including all apartments are zero grade. Wide open floor plans. Gym is currently being converted into 11+ 10x10 climate-controlled storage units. Building is built like a tank and is mechanically sound. New roof approx 7 years ago. 1.5 Acre site offers plenty of parking and large greenspace including playground area. Absolutely unlimited possibilities and potential. Hurry to get this one working for you!
  • Transaction Type: Commercial Sale
  • Property Type: Mixed-use
  • Status: Active
  • Area: 15,225 sf
  • Year Built: 1973
  • Lot Size: 1.59 Acres
Map
Businesses Nearby

Shiels Tavern

(0.3 miles away)

Hubbardston Market

(0.3 miles away)

Shield's Bar

(0.3 miles away)
Public Transportation

306 Russell St

(0.5 miles away)
Airports

No nearby airports found.

Contact Greenridge Realty, Inc.
By submitting this form, you agree to our privacy policy and terms of service.

DISCLAIMER: Listing data provided to the Site by third parties. Reliance Relocation Services, Inc. and subsidiary companies do not warrant or make representations regarding the listings and other information displayed on the page, including the reliability, accuracy, or currency of any information, content, or service displayed on this page. Listings may be withdrawn from the market at any time and are subject to errors, omissions, and prior sale or rental without notice.

Property Highlights

  • 15000+ sq ft building size

  • 5 two-bedroom residential apartments

  • Multiple office spaces and bathrooms

  • 42x65 gym converting to storage units

  • 1.5 acre site with parking and greenspace