Choose Your Preferences

Truman & Co., Inc. Logo Active Commercial Sale Mixed-use

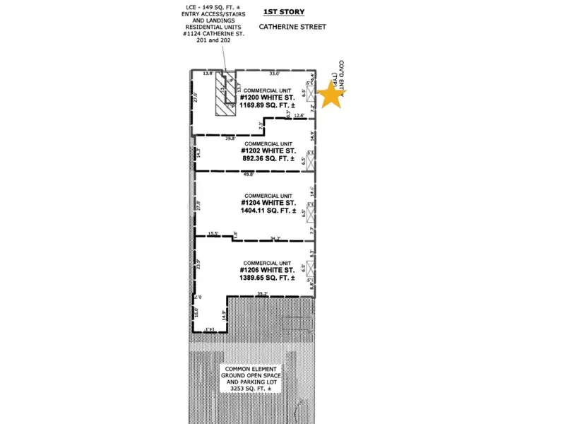
1200 White Street, Key West, Florida, 33040, USA

USD $810,000
Reference ID: 614332 Web ID: 8cc66
  • 1169 square feet first floor corner unit

  • Hurricane rated impact windows and doors

  • One assigned parking spot

  • Located in X Flood Zone

  • HNC-1 zoning for commercial uses

Newly formed commercial condo now available for sale on White Street in X Flood Zone! This 1,169sf 1st floor corner unit has been extensively updated and renovated with hurricane rated impact windows & doors and comes with 1 assigned parking spot. The monthly condo fee for this unit is $614.37 and includes windstorm and liability insurance. Condo docs & survey in documents tab. Tenant in place, please do not disturb business. HNC-1 zoning uses include professional offices, retail sales & services, specialty shops, restaurants. *3 other commercial condos also available. **Seller is a licensed Florida realtor.
  • Transaction Type: Commercial Sale
  • Property Type: Mixed-use
  • Status: Active
  • Year Built: 1989
  • Parking: Assigned
Map
Businesses Nearby

White Street Pizza

(0.5 miles away)

El Siboney Restaurant

(0.2 miles away)

Louie's Backyard

(0.5 miles away)

Seaside Cafe at the Mansion

(0.7 miles away)

Moondog Cafe Key West

(0.7 miles away)

Kaya Island Eats

(0.7 miles away)

Harpoon Harry's

(0.8 miles away)

Margaritaville Restaurant - Key West

(0.8 miles away)

Blue Heaven

(0.8 miles away)

Little Whitehouse Subs

(1 mile away)
Public Transportation

Flixbus Key West

(0.8 miles away)

Old Town Trolley Tours Key West

(1 mile away)

Greyhound: Bus Station

(2 miles away)

Key West Bus Station

(2 miles away)

Key West Transit

(3 miles away)
Airports

Key West International Airport

(2 miles away)
Contact Truman & Co., Inc.
By submitting this form, you agree to our privacy policy and terms of service.

DISCLAIMER: Listing data provided to the Site by third parties. Reliance Relocation Services, Inc. and subsidiary companies do not warrant or make representations regarding the listings and other information displayed on the page, including the reliability, accuracy, or currency of any information, content, or service displayed on this page. Listings may be withdrawn from the market at any time and are subject to errors, omissions, and prior sale or rental without notice.

Property Highlights

  • 1169 square feet first floor corner unit

  • Hurricane rated impact windows and doors

  • One assigned parking spot

  • Located in X Flood Zone

  • HNC-1 zoning for commercial uses