Choose Your Preferences

The Litchfield Company Logo Active Commercial Sale Land

910 U.S. 17 Business, Surfside Beach, South Carolina, 29575, USA

USD $750,000
Reference ID: 2422719 Web ID: f5d17
  • Pad ready commercial site

  • Located at hard corner traffic light

  • Zoned commercial

  • Owner installing main spine road

  • Includes stormwater and access roads

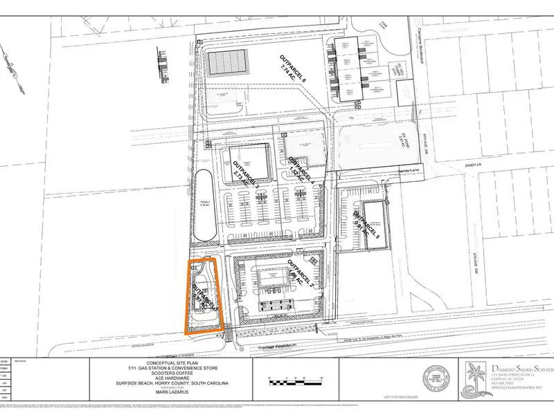
This site is pad ready Commercial Site at a hard corner / traffic light. Zoned Commercial. Last one of these sites left to be developed along Hwy 17 at a traffic light. The owner will be installing the main spine road into the property along with all of the stormwater needed for the site. All access roads will be in place for the new buyer. You will see on the conceptual site plan the access points. This will be a pad ready site for the new buyer. Call for more information.
  • Transaction Type: Commercial Sale
  • Property Type: Land
  • Status: Active
Map
Businesses Nearby

Surfside Charlies

(0.2 miles away)

Raves Restaurant

(0.2 miles away)

Pickled Cucumber

(0.7 miles away)

Wooden Spoon Eatery

(0.7 miles away)

Bruiser's Burgers

(0.9 miles away)

Cheesesteak Factory

(0.9 miles away)

Gracious Pig Smokehouse

(1 mile away)

Chimichanga llama

(1 mile away)

Dagwood's Deli & Sports Bar

(1 mile away)

Johnny D's Waffles and Benedicts, Surfside Beach

(1 mile away)
Public Transportation

Surfside Beach

(0.8 miles away)

Myrtle Beach Bus Station

(8 miles away)

Greyhound: Bus Station

(8 miles away)

Myrtle Beach Transfer Center

(9 miles away)
Airports

Myrtle Beach International Airport

(6 miles away)

Conway-Horry County Airport

(17 miles away)

Grand Strand Airport

(21 miles away)

Charleston International Airport

(78 miles away)
Contact The Litchfield Company
By submitting this form, you agree to our privacy policy and terms of service.

DISCLAIMER: Listing data provided to the Site by third parties. Reliance Relocation Services, Inc. and subsidiary companies do not warrant or make representations regarding the listings and other information displayed on the page, including the reliability, accuracy, or currency of any information, content, or service displayed on this page. Listings may be withdrawn from the market at any time and are subject to errors, omissions, and prior sale or rental without notice.

Property Highlights

  • Pad ready commercial site

  • Located at hard corner traffic light

  • Zoned commercial

  • Owner installing main spine road

  • Includes stormwater and access roads