Choose Your Preferences

Iowa Realty Logo New Active Commercial Sale Hospitality

1st Street, WDM, Iowa, 50265, USA

USD $575,000
Listed by Iowa Realty
Reference ID: 717242 Web ID: m3o03
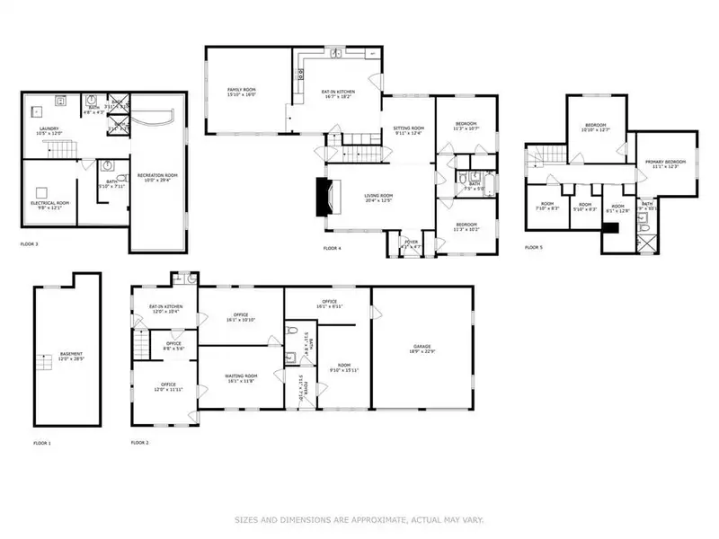
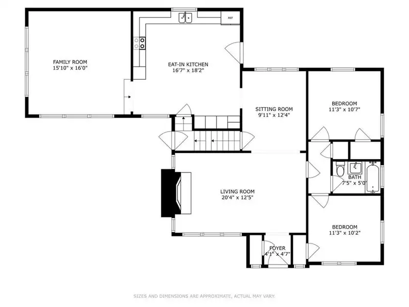
  • 4-bedroom Beaverdale Brick style home

  • Three office suites in back building

  • 22 x 24 outbuilding for storage

  • 15 private off-street parking spaces

  • Located in Historic Valley Junction Boundary

Welcome to a charming vintage home in Walnut Place, a 4-bedroom Beaverdale Brick style currently used as a VRBO. This property is a favorite among guests and a great investment with its consistent occupancy. Each room features vintage decor, creating a cozy, inviting atmosphere. The versatile back building includes three office suites, perfect for additional office space, storage, or other uses. Common areas feature a waiting room, kitchenette, and bathroom, providing a functional workspace. Additionally, there is a 22 x 24 outbuilding for storage, a workshop, or other uses. The property offers ample parking with 15 private off-street spaces and on-street parking. It is zoned VJC with conditional CZ3 zoning and equipped with a fire/smoke alarm system and sprinkler system for safety. Located within the Historic Valley Junction Boundary of West Des Moines, the property is eligible for improvement and compliance funds. This turn-key business offers flexibility for increased income, combining vintage charm, modern functionality, and investment potential. Do not miss out on this exceptional property where memories are made and opportunities abound!
  • Transaction Type: Commercial Sale
  • Property Type: Hospitality
  • Status: Active
  • Area: 3,232 sf
  • Year Built: 1939
  • Lot Size: 0.44 Acres
Map
Businesses Nearby

St. Kilda Collective

(0.6 miles away)

Cooper's on 5th

(0.7 miles away)

Paula's Cafe

(0.7 miles away)

Bix & Co.

(0.9 miles away)

The Green Olive

(1 mile away)

Mi Patria Ecuadorian Restaurant

(2 miles away)

Waterfront Seafood Market

(2 miles away)

OPA! Italian & Greek

(2 miles away)

Firebirds Wood Fired Grill

(5 miles away)

Early Bird West Des Moines

(7 miles away)
Public Transportation

Des Moines International Airport

(4 miles away)

DART Central Station

(4 miles away)

Des Moines Area Regional Transit Authority (DART)

(4 miles away)

Cherry St / Dart Central Station, DSM

(4 miles away)

Des Moines Subway

(6 miles away)

Burlington Trailways

(7 miles away)

Jefferson Lines

(7 miles away)

Greyhound

(7 miles away)
Airports

Des Moines International Airport

(4 miles away)

Fairfield Airport

(5 miles away)

Ankeny Regional Airport

(10 miles away)
Contact Iowa Realty
By submitting this form, you agree to our privacy policy and terms of service.

DISCLAIMER: Listing data provided to the Site by third parties. Reliance Relocation Services, Inc. and subsidiary companies do not warrant or make representations regarding the listings and other information displayed on the page, including the reliability, accuracy, or currency of any information, content, or service displayed on this page. Listings may be withdrawn from the market at any time and are subject to errors, omissions, and prior sale or rental without notice.

Property Highlights

  • 4-bedroom Beaverdale Brick style home

  • Three office suites in back building

  • 22 x 24 outbuilding for storage

  • 15 private off-street parking spaces

  • Located in Historic Valley Junction Boundary