Choose Your Preferences

Halter Associates Realty Logo Active Commercial Sale Hospitality

17 Mill Hill Road, Woodstock, New York, 12498, USA

USD $1,800,000
Reference ID: 20250904 Web ID: d3006
  • Located in Woodstock, NY center

  • Restaurant occupancy load 151

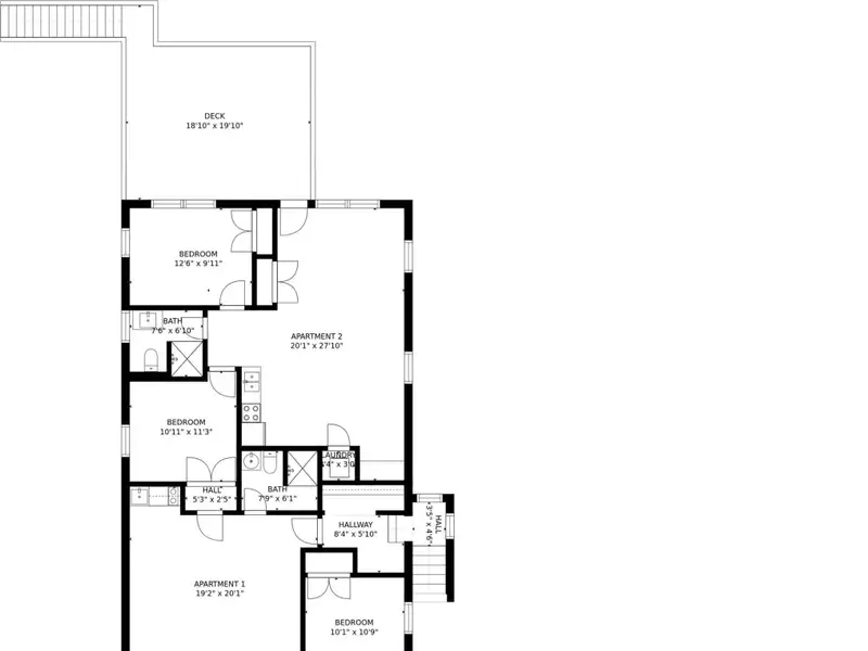
  • Two efficiency apartments included

  • Sidewalk patio engineered for rooftop bar

  • Twelve owned parking spaces

Woodstock Pub and Hotel - There is no better location (location and location) than the heart of the most famous small town in the world, Woodstock, NY. Fully equipped full service restaurant and two efficiency apartments with transferable hotel permit, all recently renovated to a high standard. Restaurant legal occupancy load of 151. A timeless 20 seat bar anchors the indoor public space with adjacent dining room, lounge area and 3 public rest rooms. Sidewalk patio designed to be open when warm or closed for 4 season use-and structurally engineered to add a rooftop bar above. Sale includes the real property, equipment, DBA and a rich history of hospitality that includes Luke ''Sugar'' Yeager, in the midst of one of the worst blizzards ever, arriving on a log pulled by a team of horses! The spacious kitchen is a chef's dream-come-true, with well laid out line and ample support/prep space. Tremendous value in new or newer hood/ansul system/roof fan; 10 burner Garland professional range/oven; ice machine; 10 tap beer system; reach-in refrigerators; compressors; you name it. Back office plus basement for dry storage and food and beer walk-in refrigerators. Permissive Hamlet Commercial zoning allows maximum by-right uses. Municipal water and sewer. High visibility and high vehicular and foot traffic counts directly on Woodstock's main drag, State Route 212, aka Mill Hill Rd. 12 owned parking spaces and contiguous to main municipal parking lot and free on-street parking. All this where the Hudson River Valley meets the Catskill Mountains, with world-class natural beauty, outdoor recreation resources, art, culture and cuisine all in one place. Don't miss your opportunity to prosper in the middle of it all!
  • Transaction Type: Commercial Sale
  • Property Type: Hospitality
  • Status: Active
  • Area: 4,659 sf
  • Year Built: 1969
  • Lot Size: 0.28 Acres
  • Cooling: Ductless, Central Air
Map
Businesses Nearby

PUB

(0.5 miles away)

Shelter Woodstock

(0.5 miles away)

Oriole 9

(0.5 miles away)

Good Night

(0.5 miles away)

SILVIA

(0.1 miles away)

Gemela

(0.1 miles away)

Pearl Moon Woodstock

(0.1 miles away)

Nana’s Take Out Cafe & Sweetery

(0.4 miles away)

Woodstock Clubhouse

(0.5 miles away)

Alba's Kitchen

(0.5 miles away)
Public Transportation

Woodstock

(0.5 miles away)

Greyhound: Bus Stop

(0.5 miles away)

Woodstock @ Rt 212 & Rock City Rd

(0.5 miles away)
Airports

Kingston Ulster Airport

(9 miles away)

Joseph Y. Resnick Airport

(25 miles away)

Hudson Valley Regional Airport

(31 miles away)

New York Stewart International Airport

(38 miles away)

Albany International Airport

(51 miles away)

Westchester County Airport

(70 miles away)

Newark Liberty International Airport

(93 miles away)

Greater Binghamton Airport

(96 miles away)

Ithaca Tompkins International Airport

(124 miles away)

Syracuse Hancock International Airport

(126 miles away)
Contact Halter Associates Realty
By submitting this form, you agree to our privacy policy and terms of service.

DISCLAIMER: Listing data provided to the Site by third parties. Reliance Relocation Services, Inc. and subsidiary companies do not warrant or make representations regarding the listings and other information displayed on the page, including the reliability, accuracy, or currency of any information, content, or service displayed on this page. Listings may be withdrawn from the market at any time and are subject to errors, omissions, and prior sale or rental without notice.

Property Highlights

  • Located in Woodstock, NY center

  • Restaurant occupancy load 151

  • Two efficiency apartments included

  • Sidewalk patio engineered for rooftop bar

  • Twelve owned parking spaces