Choose Your Preferences

Skogman Realty Logo Active Commercial Lease Industrial

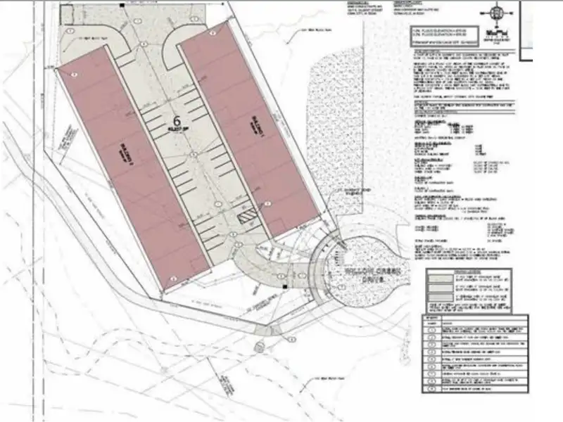
1650 Willow Creek Drive, Iowa City, Iowa, 52246, USA

USD $15
Reference ID:202503200 Web ID:70b6a
  • Future flex or warehouse space

  • Suites from 1,500 to 4,500 SF

  • Location near Highway 1 and I-380

  • Bays can be demised for buyer needs

  • Ample parking out front

Future flex or warehouse is space perfect for your future business or office.? These bays are being constructed and will be complete in July. A great location close to Highway 1 and within close proximity of the I-380 south and Highway 1 interchange.? Suites from 1,500 to 4,500 SF, the bays can be demised for the buyer’s needs.? Ample parking out front of the bays.? Asking lease rate is $15.00 psf gross.? Site plan in documents.? Picture is of similar building.? One owner is a licensed real estate agent in the state of Iowa.?
  • Transaction Type:Commercial Lease
  • Property Type:Industrial
  • Status:Active
  • Area:1,500 sf
Map
Businesses Nearby

Bistro Restaurant & Bar

(1 mile away)

Zolly’s Grill

(2 miles away)

Orchard Green Restaurant and Lounge

(2 miles away)

One Twenty Six & Moonrakers

(2 miles away)

Pullman Bar & Diner

(2 miles away)

Royceanns soul food

(2 miles away)

Marco's Grilled Cheese

(2 miles away)

the Webster

(2 miles away)

Bluebird Diner

(2 miles away)

BlackStone

(5 miles away)
Public Transportation

Iowa City

(1 mile away)

Iowa City Transit System

(1 mile away)

Greyhound: Bus Station

(2 miles away)

Burlington Trailways

(2 miles away)

Downtown Interchange

(2 miles away)
Airports

Iowa City Municipal Airport

(1 mile away)

Eastern Iowa Airport

(18 miles away)
Contact Skogman Realty
By submitting this form, you agree to our privacy policy and terms of service.

DISCLAIMER:Listing data provided to the Site by third parties. Reliance Relocation Services, Inc. and subsidiary companies do not warrant or make representations regarding the listings and other information displayed on the page, including the reliability, accuracy, or currency of any information, content, or service displayed on this page. Listings may be withdrawn from the market at any time and are subject to errors, omissions, and prior sale or rental without notice.

Property Highlights

  • Future flex or warehouse space

  • Suites from 1,500 to 4,500 SF

  • Location near Highway 1 and I-380

  • Bays can be demised for buyer needs

  • Ample parking out front