Choose Your Preferences

Davis R. Chant Realtors Logo Active Commercial Sale Mixed-use

1586 Pennsylvania 507, Greentown, Pennsylvania, 18426, USA

USD $975,000
Reference ID:PW-243802 Web ID:7c928
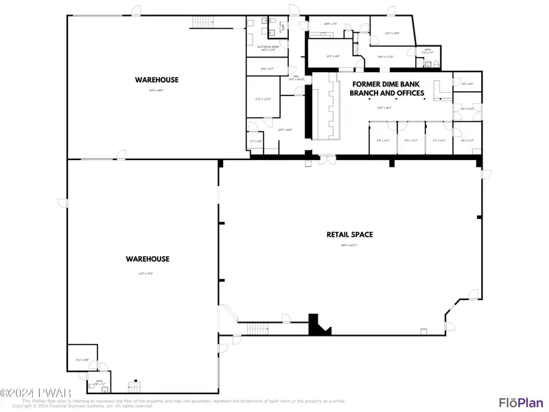
  • 26000 square foot building on 3.27 acres

  • Located 1.5 miles from Interstate 84 Exit 20

  • First floor includes 5490 sq ft retail space

  • Warehouse space with 19 foot high ceilings

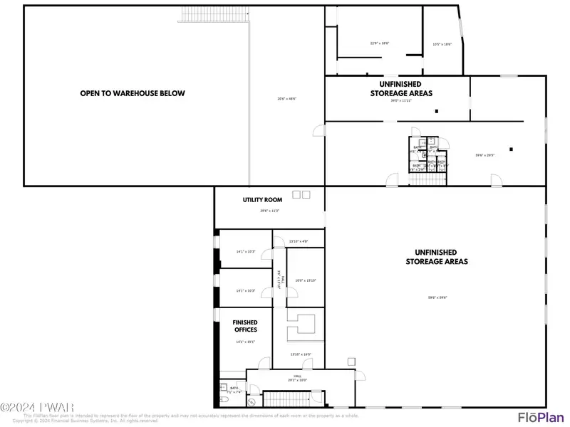
  • Second floor has 1110 sq ft office space

Commercial opportunity. 26,000 square foot commercial building on 3.27 acres. Ideally located on Route 507 only 1.5 Miles from Exit 20 on Interstate 84. The first floor is comprised of a 5,490 square foot retail space, a 3,860 square foot former bank space, and over 7,000 square feet of warehouse space with 19 foot high ceilings, a loading dock, and a second drive in entrance with a14'x14' door. The second floor has 1110 square feet of office space and an additional 7600 square feet of storage space with 10' ceilings. There is plenty of paved parking and access from 3 different public roads. No zoning in this township, opening up many possibilities for various uses, with room to expand. This is an ideal opportunity to locate your business in the Northern Poconos.
  • Transaction Type:Commercial Sale
  • Property Type:Mixed-use
  • Status:Active
  • Area:26,148 sf
  • Year Built:1960
  • Lot Size:3.27 Acres
  • Parking:Parking Lot, Paved or Surfaced
Map
Businesses Nearby

The Greentown Grill and Black Saddle Smoke House

(0.3 miles away)

John's Italian Restaurant

(2 miles away)

Overboards

(3 miles away)

Mountainhouse Tavern

(5 miles away)

Promised Land Inn

(5 miles away)

Old Rangers Inn

(5 miles away)
Public Transportation

Pocono Mountain Public Library

(12 miles away)

NHS Mt Pocono

(13 miles away)

Mt Pocono Plaza

(14 miles away)

Monroe County Transit Authority

(17 miles away)

Train Station I

(18 miles away)

Weis Tannersville

(19 miles away)

Scranton

(20 miles away)

COLTS

(21 miles away)
Airports

Mountain Bay Air Park Inc

(5 miles away)

Pocono Mountains Municipal Airport

(13 miles away)

Cherry Ridge Airport

(14 miles away)

Wilkes-Barre Scranton International Airport

(22 miles away)

Hazleton Regional Airport

(42 miles away)

Lehigh Valley International Airport

(47 miles away)

Philadelphia International Airport

(100 miles away)

Harrisburg International Airport

(109 miles away)

Erie International Airport

(256 miles away)
Contact Davis R. Chant Realtors
By submitting this form, you agree to our privacy policy and terms of service.

DISCLAIMER:Listing data provided to the Site by third parties. Reliance Relocation Services, Inc. and subsidiary companies do not warrant or make representations regarding the listings and other information displayed on the page, including the reliability, accuracy, or currency of any information, content, or service displayed on this page. Listings may be withdrawn from the market at any time and are subject to errors, omissions, and prior sale or rental without notice.

Property Highlights

  • 26000 square foot building on 3.27 acres

  • Located 1.5 miles from Interstate 84 Exit 20

  • First floor includes 5490 sq ft retail space

  • Warehouse space with 19 foot high ceilings

  • Second floor has 1110 sq ft office space