Choose Your Preferences

Lewith & Freeman Real Estate Logo New Active Commercial Sale Industrial

36 Atherton Avenue, Wyoming, Pennsylvania, 18644, USA

USD $550,000
Reference ID:25-5216 Web ID:e950k
  • Central location one block from Wyoming Ave

  • 8000+ square feet building size

  • Brick and block construction

  • New garage doors installed

  • New heating system installed

Opportunity awaits in Wyoming - excellent central location, one block from Wyoming Ave (Rt 11), for this 8,000+ sq ft brick and block building with new garage doors and heating system. Ample ceiling height allows for a multitude of uses including personal storage, warehousing, automotive, small distribution, or bring your ideas to repurpose.
  • Transaction Type:Commercial Sale
  • Property Type:Industrial
  • Status:Active
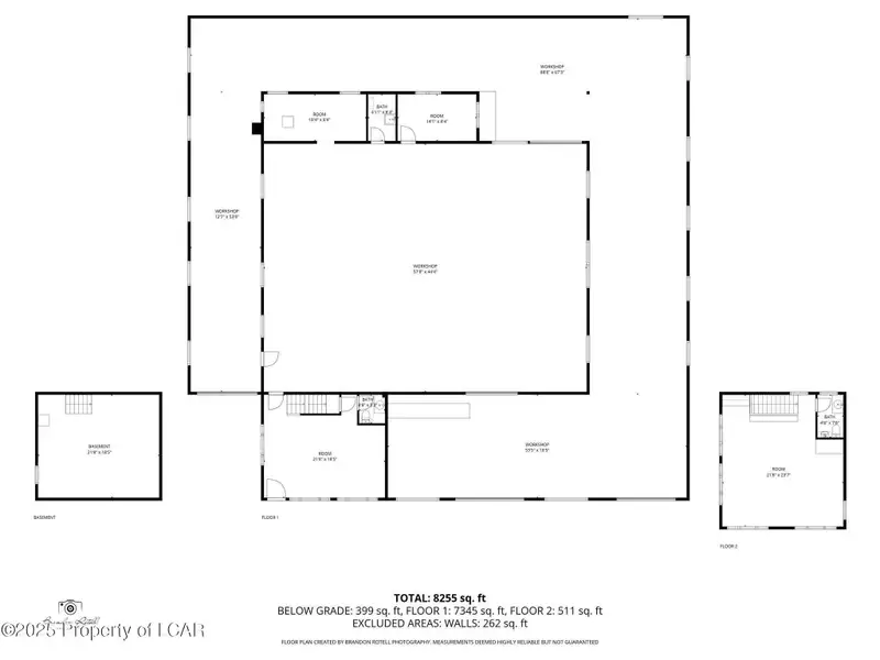
  • Area:8,255 sf
  • Cooling:Multi Units, Wall Unit(s)
  • Parking:Garage
Map
Businesses Nearby

Togoz Pizza

(0.1 miles away)

Marianacci's Restaurant

(0.3 miles away)

The Avenue Restaurant & Catering

(0.5 miles away)

Lighthouse Inn

(0.7 miles away)

Hong Kong

(1 mile away)

Victory Pig Pizza & Barbecue

(1 mile away)

Midway Shopping Center

(1 mile away)

Angelo's

(1 mile away)

Colonial Family Restaurant

(1 mile away)

Grico's

(1 mile away)
Public Transportation

Wyoming Ave and 8th St I

(0.5 miles away)

Wyoming Ave and 8th St O

(0.5 miles away)

Wyoming Ave and Gerritys I

(1 mile away)
Airports

Wilkes-Barre Wyoming Valley Airport

(1 mile away)

Wilkes-Barre Scranton International Airport

(6 miles away)

Pocono Mountains Municipal Airport

(27 miles away)
Contact Lewith & Freeman Real Estate
By submitting this form, you agree to our privacy policy and terms of service.

DISCLAIMER:Listing data provided to the Site by third parties. Reliance Relocation Services, Inc. and subsidiary companies do not warrant or make representations regarding the listings and other information displayed on the page, including the reliability, accuracy, or currency of any information, content, or service displayed on this page. Listings may be withdrawn from the market at any time and are subject to errors, omissions, and prior sale or rental without notice.

Property Highlights

  • Central location one block from Wyoming Ave

  • 8000+ square feet building size

  • Brick and block construction

  • New garage doors installed

  • New heating system installed