Choose Your Preferences

Adams, Cameron & Co. Realtors & Auctioneers Logo Pending Commercial Sale Office

800 Sterthaus Drive #A, Ormond Beach, Florida, 32174, USA

USD $439,900
Reference ID:1217500 Web ID:rlpst
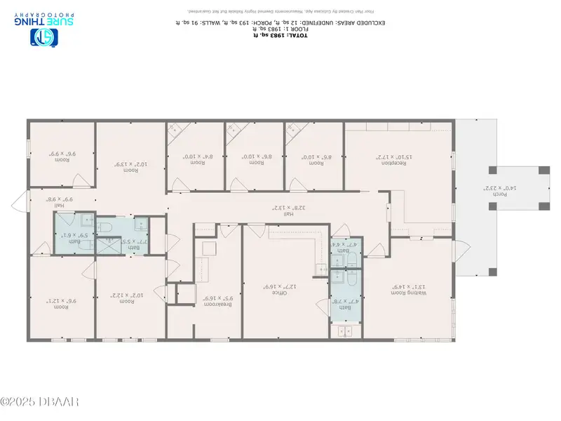
  • 2112 square feet medical office space

  • Located off Granada Blvd in Ormond Beach

  • Part of medical complex with specialists

  • Seven exam rooms included

  • Four bathrooms within unit

New to Market - 2112 S.F. of Medical Office Space with recent upgrades is now available in Ormond Beach. This space is located just off Granada Blvd. in a dense area of office space that serves various medical fields and other office uses. The office is part of a medical complex that includes dentists, dermatologists, and plastic surgeons. This turn-key end unit features a spacious waiting room, a reception area, an executive office, seven exam rooms, four bathrooms, and a breakroom/X-ray room. Please note that excluded uses for this space are another dentist, dermatologist, or plastic surgeon.
  • Transaction Type:Commercial Sale
  • Property Type:Office
  • Status:Pending
  • Area:2,112 sf
  • Year Built:1985
  • Lot Size:0.04 Acres
  • Cooling:Central Air
  • Parking:Parking Lot
Map
Businesses Nearby

IHOP

(0.4 miles away)

Culver’s

(0.4 miles away)

Fat Paulies Wicked Awesome Eatery

(0.8 miles away)

Ormond Brewing Company

(1 mile away)

Rose Villa Restaurant, Southern Table and Bar

(1 mile away)

RiverGrille on the Tomoka

(2 miles away)

First Watch

(2 miles away)

Stonewood Grill & Tavern

(3 miles away)

Angelina’s Diner

(3 miles away)

Riptides Raw Bar and Grill

(3 miles away)
Public Transportation

Ormond Mall

(3 miles away)
Airports

No nearby airports found.

Contact Adams, Cameron & Co. Realtors & Auctioneers
By submitting this form, you agree to our privacy policy and terms of service.

DISCLAIMER:Listing data provided to the Site by third parties. Reliance Relocation Services, Inc. and subsidiary companies do not warrant or make representations regarding the listings and other information displayed on the page, including the reliability, accuracy, or currency of any information, content, or service displayed on this page. Listings may be withdrawn from the market at any time and are subject to errors, omissions, and prior sale or rental without notice.

Property Highlights

  • 2112 square feet medical office space

  • Located off Granada Blvd in Ormond Beach

  • Part of medical complex with specialists

  • Seven exam rooms included

  • Four bathrooms within unit